For anyone now in the process of building a house from the ground up, or anyone who dreams of one day building such a house, or even anyone who thinks that anyone who builds a house is insane, you'll find justification for your position on Paul Siskin's Blog on the website of Interior Design magazine.

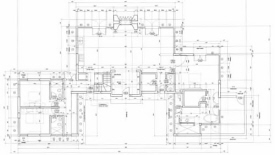
Siskin, of Siskin Valls Interior Design in Manhattan, is building his first house, sited on a new road a little up the hill from Mount Merino Boulevard (that of the spectacular Hudson River views), in Greenport just south of Hudson. His blog is funny ("my contractor refers to the area as Brokeback Mountain"), informative (he shares with his readers the inspirational tearsheets he gave to his architect), and he even asks us to arbitrate differences between them ("My architect thinks that I absolutely must have a front door in the center bump-out [see plan, below left]. I think it’s okay to have just the two side doors [see model, below right]. Who’s right?")



His architect, Joan Chan, won that round. But a later debate, whether to have a large pivoting door so the bedroom and living room can flow together, or a more conventional separation of rooms, remains unresolved. The best part: witnessing someone who has dealt for decades with nervous, indecisive, unrealistic clients as they futilely attempt to blend their oily ambitions with their watery budgets; behave on the hot seat, every bit as badly as we would. In Banter, Siskin considers firing, first his architect, then his contractor, both of whom no doubt read the blog. His dark night of the soul is expressed both verbally and pictorially--Blandings dream house, Siskin's nightmare; a 50s futuristic horror, uh-oh, probably seemed like a good idea at the time; what about his childhood fantasy of living in a tree-house? Turns out, to paraphrase the celebrity rags, design professionals are just like us.